Detalhes do imóvel

Voltar

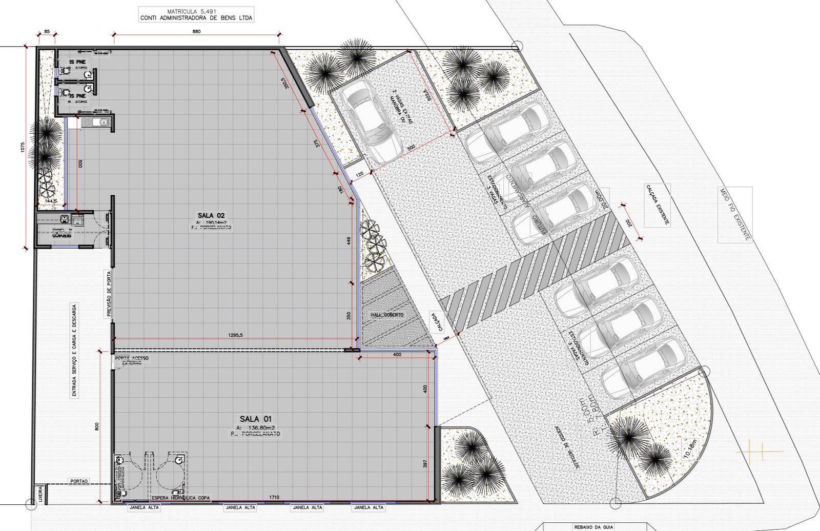
Terreno

REF: 26000.213

AV. (consulte a Imobiliária.) - Vila Lalau, Jaragua do Sul - SC

  • Área total 783,35 m²


Localizado em uma das vias mais movimentadas da cidade, este terreno de esquina é uma oportunidade estratégica para quem busca visibilidade, fluxo e valorização. Situado a poucos metros da Havan e com 20 metros de frente para a avenida principal, ele se destaca pela posição privilegiada e fácil acesso
— ideal para instalação de comércios, showrooms, clínicas ou empreendimentos corporativos.

Além da excelente localização, o terreno já possui projeto aprovado, somando 450m² de área construída, o que acelera o início das obras e amplia o potencial de retorno sobre o investimento.

Jon.


Características

  • Farmácia:
    Próximo
  • Pavimentação:
    Asfalto
  • Colégio:
    Próximo
  • Supermercado:
    Próximo

Dependências

  • Frente:
    25,05
  • Fundos:
    24,17

Ficou interessado? Entre em contato

Nós usamos cookies e outras tecnologias semelhantes para melhorar a sua experiência em nosso site, para disponibilizar um conteúdo do seu interesse. Ao utilizar nosso site você concorda com tal monitoramento.